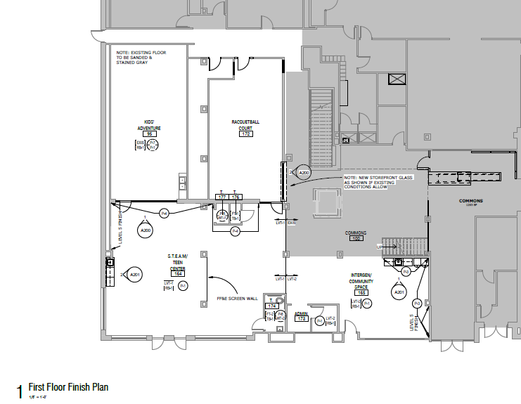
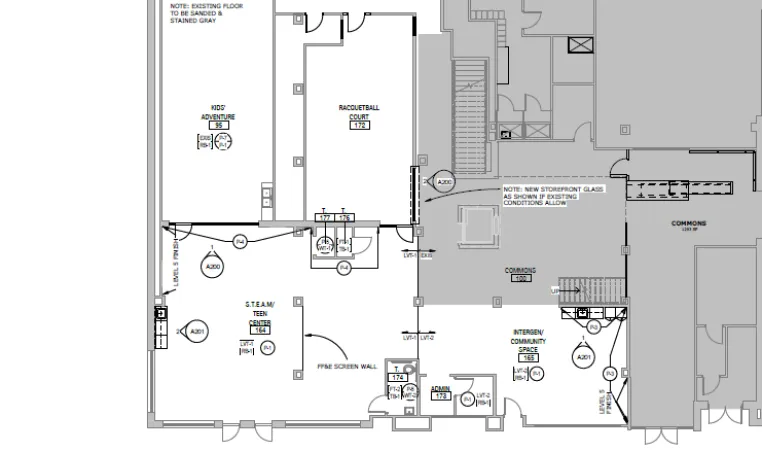
floor plan

Exciting changes are happening at our main facility, and we can’t wait to share them with you! While we’re still open and offering all of our usual services, you might notice some dust and construction noise on the first floor. That’s because we’re giving the space a major facelift to better serve our community. Here’s a sneak peek of what’s in store!

A New Home for Intergenerational Fun!

With our Downtown Early Center opening a new location at Millworks, the space they occupied is being transformed into a brand-new Intergenerational Community Space. This versatile area is being designed to accommodate everyone—whether you're an adult, teen, or family. The space will be able to shift usage throughout the day, offering things such as:

  • Community Gatherings: A space for meetings, workshops, and classes for all ages.
  • Members Commons Area: A place for members to relax and chat before or after a group-ex class, or other similar activity.
  • Family Fun: Playtime and bonding activities for parents and kids.
  • Teen Center: A designated spot for teens to relax and engage in after school programming.

Introducing Our Brand-New Ninja Gym!

If the above wasn’t exciting enough, we’re thrilled to announce the construction of a Ninja Gym! This will be a 10x30-foot obstacle course designed for youth programs, something entirely new for our facility. Think of it like a mini Ninja Warrior course—complete with hanging, climbing, and balance obstacles.

Youth, families, and more can test their agility, build strength, and have a blast while doing it. We’re already planning new programs and activities around the Ninja Gym, and we can’t wait to see everyone enjoy this unique addition.

We’re Still Open!

We want to assure you that throughout this renovation, our doors will remain open. You’ll still have access to all our regular programming, even as we build a brighter and more engaging space for our community. We appreciate your patience and can’t wait to unveil the final result in the coming months.

Stay tuned for more updates, and feel free to reach out if you have any questions! Our current estimated timeline of completion is January of 2025.

Image 1
Image 2
Image 3
Image 4